本次為禪意辦公室裝修效果圖,辦公室設計面積370平方,設計師在辦公室設計中,以自然、禪意為辦公室設計關鍵詞,目的就是希望營造一個具有東方韻味的幽靜的辦公空間。
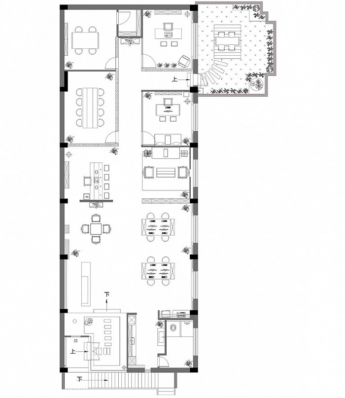
▼禪意辦公室平面圖

▼禪意辦公室入口

▼禪意辦公室前臺

▼禪意辦公室前臺

▼禪意辦公室水池

▼禪意辦公室辦公區

▼禪意辦公室辦公區

▼禪意辦公室交流區

▼禪意辦公室交流區

▼禪意辦公室會議室

▼禪意辦公室休息區

▼禪意經理辦公室

▼禪意經理辦公室

▼禪意辦公室洗手間

本次禪意辦公室裝修效果圖講解到此結束,設計師在辦公室設計中,以自然、禪意為辦公室設計關鍵詞,目的就是希望營造一個具有東方韻味的幽靜的辦公空間。
案例推薦
>>>中式辦公室裝修設計效果圖