本次為傳媒辦公室裝修設計方案,設計師在辦公室設計中,以有趣、簡潔、實用為辦公室設計關鍵詞,目的就是希望打造一個時尚、簡潔、實用的辦公空間。
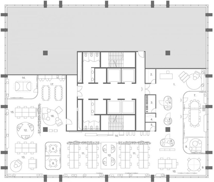
▼傳媒辦公室平面圖

▼傳媒辦公室前臺

▼傳媒辦公室辦公區

▼傳媒辦公室辦公區

▼傳媒辦公室辦公區

▼傳媒辦公室辦公區

▼傳媒辦公室辦公區

▼傳媒辦公室綠植

▼傳媒辦公室討論區

▼傳媒辦公室交流區

▼傳媒辦公室洽談區

▼傳媒辦公室會議室

▼傳媒辦公室會議室

▼傳媒辦公室休閑區

本次傳媒辦公室裝修設計方案講解到此結束,設計師在辦公室設計中,以有趣、簡潔、實用為辦公室設計關鍵詞,目的就是希望打造一個時尚、簡潔、實用的辦公空間。