一萬六千平米的陽朔糖舍酒店,映入眼簾的是千姿百態的景致,高入空中煙囪頂,低至池內鋪底磚,從蘆葦到連理樹,到舊木板及門拼花,早先的老壁舊垣,如今的姹紫嫣紅開遍。
▼糖舍酒店鳥瞰圖

▼糖舍酒店景觀水池

▼糖舍酒店景觀水池

▼糖舍酒店景觀水池

▼糖舍酒店主樓外觀

▼糖舍酒店連廊

▼糖舍酒店連廊

▼糖舍酒店連廊

▼糖舍酒店客房走廊

▼糖舍酒店接待大廳

▼糖舍酒店接待大廳

▼糖舍酒店接待大廳

▼糖舍酒店接待大廳

▼糖舍酒店全日餐廳

▼糖舍酒店全日餐廳

▼糖舍酒店全日餐廳

▼糖舍酒店主用餐區

▼糖舍酒店主用餐區

▼糖舍酒店墻畫

▼糖舍酒店咖啡廳

▼糖舍酒店咖啡廳

▼糖舍酒店咖啡廳

▼糖舍酒店咖啡廳

▼糖舍酒店酒吧

▼糖舍酒店酒吧

▼糖舍酒店酒吧

▼糖舍酒店客房

▼糖舍酒店客房

▼糖舍酒店客房

▼糖舍酒店客房

▼糖舍酒店浴室

▼糖舍酒店浴室

▼糖舍酒店套房

▼糖舍酒店套房

▼糖舍酒店客房軟裝

▼糖舍酒店客房軟裝

▼糖舍酒店臥室及浴室

▼糖舍酒店臥室

▼糖舍酒店浴室

▼糖舍酒店別墅

▼糖舍酒店別墅

▼糖舍酒店搭配窗景

▼糖舍酒店陽臺

▼糖舍酒店室外庭院

▼糖舍酒店畫廊前廳

▼糖舍酒店畫廊前廳

▼糖舍酒店畫廊前廳

▼糖舍酒店畫廊前廳

▼糖舍酒店室內展廳

▼糖舍酒店室內展廳

▼糖舍酒店書吧

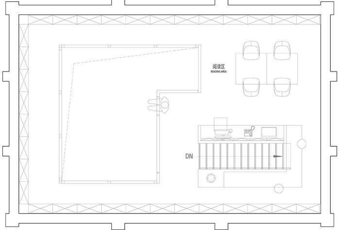
▼糖舍酒店書吧

▼糖舍酒店書吧

▼糖舍酒店書吧

▼糖舍酒店SPA入口

▼糖舍酒店SPA區域

▼糖舍酒店SPA區域

▼糖舍酒店SPA區域

▼糖舍酒店場地平面圖

▼糖舍酒店接待區平面圖

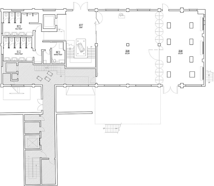
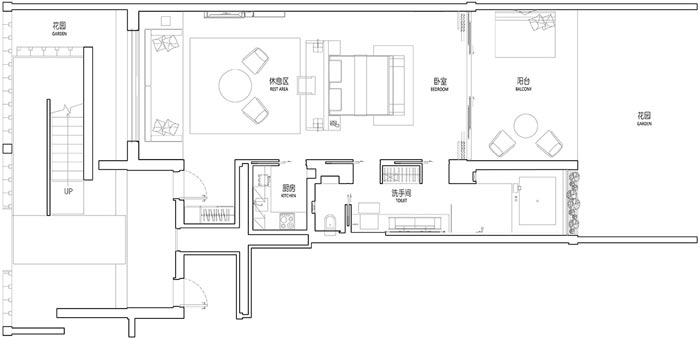
▼糖舍酒店一層平面圖

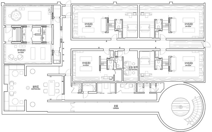
▼糖舍酒店水療區平面圖

▼糖舍酒店二層平面圖

▼糖舍酒店一層平面圖

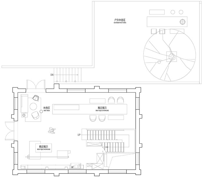
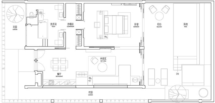
▼糖舍酒店別墅平面圖

▼糖舍酒店別墅平面圖

項目地點:廣西桂林陽朔
室內設計:琚賓/水平線空間設計
建筑設計:董功/直向建筑
老建筑改造設計:琚賓、董功
場地設計:董功、琚賓
景觀設計:琚賓、董功
建筑設計團隊:何斌、王楠、劉晨、朱方舟、王堅、徐孟堯、孔祥棟、劉智勇、李柏、張鵬、馬小凱、趙亮亮
室內設計團隊:韋金晶、韋耀程、聶紅明、 張洛愷、羅釩予、張軒榮、周文駿
駐場建筑師:趙亮亮、張鵬/直向建筑,李映發、李希普/水平線空間設計
機電顧問:林森、李海家、韋福良、何姣榮、高宇/深圳市嘉石機電工程設計有限公司
燈光顧問:Albert Martin Klaasen / Klaasen Lighting Design
當地設計院:桂林市建筑設計研究院
合作項目建筑師:覃建明
合作建筑師:楊木、盧遠欣
結構設計:鄭文甫、李波、周賢忠
機電設計:林德生、陸小燕、鄧京
景觀設計:于謙柏、肖瀅瀛
業主:陽朔新天地旅游發展有限公司
酒店管理:阿麗拉酒店及度假村
結構:框架剪力墻結構
材料:木模混凝土、混凝土砌塊、當地石材、竹木、白色肌理涂料、水磨石、水洗石
建筑面積:16,000㎡
設計時間:08/2013 – 10/2014
建造時間:10/2014 – 06/2017
攝影:井旭峰(鳥瞰:陳顥)
撰文:琚賓
設計師在酒店設計中,對酒店整體的格局、廣度、深度、成本都有很好的掌控,各種細節的把控,讓設計師有了更加深刻的心得和收獲。